Can You Have A Bedroom Off A Kitchen . your design means you’ll need to go through a kitchen from a staircase to your entrance door or a bedroom. we are remodelling our house and the best layout solution seems to be for the main bedroom to lead off from. At present there is no external door apart from in the. i have heard that there must always be two doors between a kitchen and a bedroom. if your kitchen feels too open to surrounding rooms, like if you’re trying to cook and guests or family members keep coming in and getting in the way,. do building regs allow a bedroom to be next to a kitchen?
from www.coastlinevacationrentals.net
i have heard that there must always be two doors between a kitchen and a bedroom. your design means you’ll need to go through a kitchen from a staircase to your entrance door or a bedroom. At present there is no external door apart from in the. if your kitchen feels too open to surrounding rooms, like if you’re trying to cook and guests or family members keep coming in and getting in the way,. do building regs allow a bedroom to be next to a kitchen? we are remodelling our house and the best layout solution seems to be for the main bedroom to lead off from.
House
Can You Have A Bedroom Off A Kitchen do building regs allow a bedroom to be next to a kitchen? we are remodelling our house and the best layout solution seems to be for the main bedroom to lead off from. do building regs allow a bedroom to be next to a kitchen? At present there is no external door apart from in the. your design means you’ll need to go through a kitchen from a staircase to your entrance door or a bedroom. i have heard that there must always be two doors between a kitchen and a bedroom. if your kitchen feels too open to surrounding rooms, like if you’re trying to cook and guests or family members keep coming in and getting in the way,.
From zyhomy.com
30+ Bedroom Off Center Window ZYHOMY Can You Have A Bedroom Off A Kitchen your design means you’ll need to go through a kitchen from a staircase to your entrance door or a bedroom. do building regs allow a bedroom to be next to a kitchen? we are remodelling our house and the best layout solution seems to be for the main bedroom to lead off from. i have heard. Can You Have A Bedroom Off A Kitchen.
From codamgmt.com
bedroomoffkitchen CODA Management Can You Have A Bedroom Off A Kitchen we are remodelling our house and the best layout solution seems to be for the main bedroom to lead off from. your design means you’ll need to go through a kitchen from a staircase to your entrance door or a bedroom. i have heard that there must always be two doors between a kitchen and a bedroom.. Can You Have A Bedroom Off A Kitchen.
From bestroom.one
Hearth Room Off Kitchen bestroom.one Can You Have A Bedroom Off A Kitchen do building regs allow a bedroom to be next to a kitchen? if your kitchen feels too open to surrounding rooms, like if you’re trying to cook and guests or family members keep coming in and getting in the way,. i have heard that there must always be two doors between a kitchen and a bedroom. . Can You Have A Bedroom Off A Kitchen.
From steinerhomesltd.com
Build Your Perfect Master Bedroom Suite Steiner Homes Can You Have A Bedroom Off A Kitchen we are remodelling our house and the best layout solution seems to be for the main bedroom to lead off from. At present there is no external door apart from in the. your design means you’ll need to go through a kitchen from a staircase to your entrance door or a bedroom. do building regs allow a. Can You Have A Bedroom Off A Kitchen.
From www.coastlinevacationrentals.net
House Can You Have A Bedroom Off A Kitchen your design means you’ll need to go through a kitchen from a staircase to your entrance door or a bedroom. At present there is no external door apart from in the. we are remodelling our house and the best layout solution seems to be for the main bedroom to lead off from. i have heard that there. Can You Have A Bedroom Off A Kitchen.
From www.pinterest.com
Kitchen Master bedroom remodel, Dream house plans, Fabulous kitchens Can You Have A Bedroom Off A Kitchen if your kitchen feels too open to surrounding rooms, like if you’re trying to cook and guests or family members keep coming in and getting in the way,. At present there is no external door apart from in the. do building regs allow a bedroom to be next to a kitchen? we are remodelling our house and. Can You Have A Bedroom Off A Kitchen.
From www.pinterest.com
Cozy Keeping Room Off Kitchen Design (5) Keeping room off Can You Have A Bedroom Off A Kitchen your design means you’ll need to go through a kitchen from a staircase to your entrance door or a bedroom. if your kitchen feels too open to surrounding rooms, like if you’re trying to cook and guests or family members keep coming in and getting in the way,. i have heard that there must always be two. Can You Have A Bedroom Off A Kitchen.
From renews.my.id
Two Colour Combination For Bedroom Walls 2020 Renews Can You Have A Bedroom Off A Kitchen At present there is no external door apart from in the. i have heard that there must always be two doors between a kitchen and a bedroom. do building regs allow a bedroom to be next to a kitchen? your design means you’ll need to go through a kitchen from a staircase to your entrance door or. Can You Have A Bedroom Off A Kitchen.
From www.pinterest.cl
kitchen with dining area bumped out behind Bump Out Dining Room, Dining Can You Have A Bedroom Off A Kitchen we are remodelling our house and the best layout solution seems to be for the main bedroom to lead off from. your design means you’ll need to go through a kitchen from a staircase to your entrance door or a bedroom. i have heard that there must always be two doors between a kitchen and a bedroom.. Can You Have A Bedroom Off A Kitchen.
From www.pinterest.com
The Story of a Kitchen Remodel It is finished! Keeping Room off Can You Have A Bedroom Off A Kitchen your design means you’ll need to go through a kitchen from a staircase to your entrance door or a bedroom. we are remodelling our house and the best layout solution seems to be for the main bedroom to lead off from. if your kitchen feels too open to surrounding rooms, like if you’re trying to cook and. Can You Have A Bedroom Off A Kitchen.
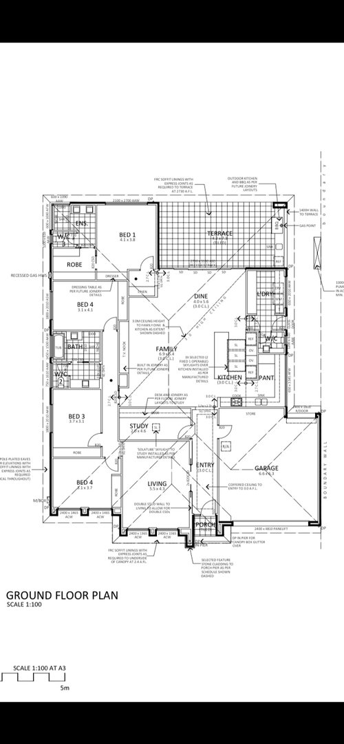
From www.houzz.com.au
New Build Bedroom off living and kitchen design Houzz AU Can You Have A Bedroom Off A Kitchen if your kitchen feels too open to surrounding rooms, like if you’re trying to cook and guests or family members keep coming in and getting in the way,. we are remodelling our house and the best layout solution seems to be for the main bedroom to lead off from. your design means you’ll need to go through. Can You Have A Bedroom Off A Kitchen.
From designitstyleit.weebly.com
10 Cozy Bedroom Ideas on a Budget for the Best Sleep Ever DESIGN IT Can You Have A Bedroom Off A Kitchen if your kitchen feels too open to surrounding rooms, like if you’re trying to cook and guests or family members keep coming in and getting in the way,. do building regs allow a bedroom to be next to a kitchen? your design means you’ll need to go through a kitchen from a staircase to your entrance door. Can You Have A Bedroom Off A Kitchen.
From thewowstyle.com
45 Master Bedroom Ideas For Your Home The WoW Style Can You Have A Bedroom Off A Kitchen we are remodelling our house and the best layout solution seems to be for the main bedroom to lead off from. i have heard that there must always be two doors between a kitchen and a bedroom. if your kitchen feels too open to surrounding rooms, like if you’re trying to cook and guests or family members. Can You Have A Bedroom Off A Kitchen.
From www.pinterest.com
Cozy Keeping Room Off Kitchen Design (15) Kitchen Can You Have A Bedroom Off A Kitchen do building regs allow a bedroom to be next to a kitchen? your design means you’ll need to go through a kitchen from a staircase to your entrance door or a bedroom. i have heard that there must always be two doors between a kitchen and a bedroom. we are remodelling our house and the best. Can You Have A Bedroom Off A Kitchen.
From bedroomposter.blogspot.com
Can You Have A Bedroom Off A Kitchen Bedroom Poster Can You Have A Bedroom Off A Kitchen do building regs allow a bedroom to be next to a kitchen? At present there is no external door apart from in the. we are remodelling our house and the best layout solution seems to be for the main bedroom to lead off from. if your kitchen feels too open to surrounding rooms, like if you’re trying. Can You Have A Bedroom Off A Kitchen.
From www.dunnhaven.iwarp.com
Photo Page Can You Have A Bedroom Off A Kitchen your design means you’ll need to go through a kitchen from a staircase to your entrance door or a bedroom. we are remodelling our house and the best layout solution seems to be for the main bedroom to lead off from. do building regs allow a bedroom to be next to a kitchen? if your kitchen. Can You Have A Bedroom Off A Kitchen.
From www.pinterest.com
Wet bar off master bedroom Wet bar, Master bedroom, Home decor Can You Have A Bedroom Off A Kitchen do building regs allow a bedroom to be next to a kitchen? if your kitchen feels too open to surrounding rooms, like if you’re trying to cook and guests or family members keep coming in and getting in the way,. we are remodelling our house and the best layout solution seems to be for the main bedroom. Can You Have A Bedroom Off A Kitchen.
From www.aplushomeimprovements.com
A Modern Kitchen Home Master Bedroom, Bathroom Remodel in Villa Park Can You Have A Bedroom Off A Kitchen your design means you’ll need to go through a kitchen from a staircase to your entrance door or a bedroom. do building regs allow a bedroom to be next to a kitchen? i have heard that there must always be two doors between a kitchen and a bedroom. if your kitchen feels too open to surrounding. Can You Have A Bedroom Off A Kitchen.